Réglementation Emplacement Handicapé Belgique

In België is er een strikte regelgeving rond het plaatsen van bedrijven en openbare ruimtes die toegankelijk zijn voor mensen met een handicap. Deze regelgeving, vastgelegd in de Wet van 13 december 2013 houdende de uitvoering van de Europese richtlijn betreffende de inrichting van openbare gebouwen en toegangsdiensten door iedereen, ligt er op om discriminatie te voorkomen en de integratie van personen met een handicap te bevorderen.

Réglementation Emplacement Handicapé Belgique

Emplacement de stationnement réservé aux personnes handicapées - Atingo

Deze wet bepaalt onder meer minimumvoorschriften voor toegankelijkheid op vlak van: de toegang tot gebouwen, bewegwijzering, sanitaire voorzieningen, liftsystemen, parkeergelegenheden voor personen met een handicap en communicatie.

De regelgeving geldt voor zowel nieuwe als bestaande gebouwen. Voor nieuwbouw geldt een strengere toepassing van de wet, terwijl voor bestaande gebouwen vervangingsconstructies of aanpassingen kunnen worden overwogen in functie van de specifieke situatie. De overheid kan een attest van toegankelijkheid uitreiken aan gebouwen die voldoen aan de wet.

Het niet naleven van de regelgeving kan leiden tot sancties. De exacte hoogte van deze sancties kan variëren, afhankelijk van de ernst van de overtreding.

Er zijn diverse organisaties die ondersteuning bieden aan mensen met een handicap bij het navigeren door de regelgeving. De overheid, samen met lokale besturen, organiseert ook opleidingen en infosessies over toegankelijkheid en de toepassingen van de Wet van 13 december 2013.

Naast de wettelijke verplichtingen is het belangrijk om te benadrukken dat toegankelijkheid voor mensen met een handicap ook een kwestie van inclusie en respect is. Het creëren van een samenleving waar iedereen zich welkom en gewaardeerd voelt is een samenwerkingsverband tussen overheid, bedrijven en individuen.

For more information, click the button below.

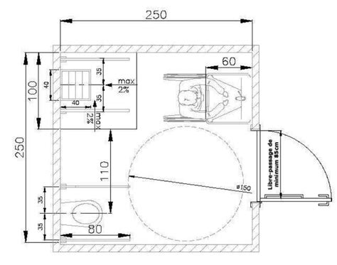
Comment aménager les sanitaires pour PMR ? | Téréva Direct

Aménagement d'une salle de bain PMR | Salle de bain pmr, Salle de bains ...

Sanitaires Accessibles : Bien équiper les sanitaires de son ERP pour l ...

Trone - Tout savoir sur les WC PMR (handicapés)

-

Tags

Handicapped Symbol Handicap Symbol WC Handicape Handicap Clip Art EnfantHandicapé Une Famille Handicap International Logo Wheelchair Logo Clip Art Handicapped Child Le Harcelement Handcap Cartoon Handicap Edition Rue De l'Universite Symbole Handicap Handicaped Character Handicap Handicaped Man Harcelement Scolaire Garderie Enfants Handicap Person On Ramp Handicap Wallpaper Wheelchair User Handicap Parking Sign Les Handicapés La Paralysie Handicapped ABS International Disabilities Symbol Wheelchair-Accessible Logo Les Espagnols Wheelchair Sizes for Adults Disabled/Handicapped Men Tetraplegique Different Types of Handicaps Cerebral Palsy Spinal Fluid Autism Maladie De Charcot Fauteuil Roulant Spanish AA Handicap Logo Tetraplejía Flácida Les Handicappee AU France Paraplegicladies Ada Handicap Parking Signs Handicap People Ilustration Ninos Con Sindrome De Down Borne Posé Sur Place Handicapée Diabilites Logo African Women with Disability Handicap Ramp Going into Mobile Home Paralisis Cerebral Ortopedico Colitis Cerebral Palsy Sofa for Disabled Handicap Parking Symbol

Author

Deutca

Gedreven door een oprechte toewijding aan het onderwijs en door de levendige dynamiek van het schoolleven, heb ik mijn professionele loopbaan vormgegeven met het doel actief bij te dragen aan de volledige ontwikkeling van leerlingen. Ik combineer pedagogische fundamenten, praktijkervaring in de klas en een aandachtige, empathische luisterhouding om initiatieven te creëren die verschillen respecteren en de unieke identiteit van elke leerling versterken. Mijn academische opleiding, in combinatie met dagelijkse praktijkervaring, ondersteunt de ontwikkeling van betekenisvolle leerervaringen, verankerd in dialoog, gevoeligheid en creativiteit. - payment.zenithprepacademy.com.